康乐县一二三产业融合示范片区建设项目(畜禽产品物流园)规划设计方案

来源:县自然资源局 浏览次数: 发布时间: 2025-08-20 17:22
字号:
收藏

康乐县一二三产业融合示范片区建设项目(畜禽产品物流园)建筑方案设计,依据《中华人民共和国城乡规划法》《甘肃省城乡规划条例》《甘肃省建设项目规划许可管理办法》,现将该项目规划设计方案情况如下:

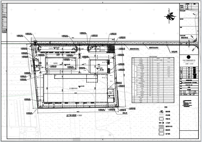
一、项目拟选位置

康乐县附城镇刘家庙村。

二、建设内容

总用地面积23125.05㎡(合34.69亩),新建1层(局部2层)1栋牛羊屠宰车间、2层1栋综合服务楼、1层包材库、冷库、产品交易区、辅助用房、制冷机房及配套附属设施,总建筑面积15208.83平方米。

三、如有意见和建议请以书面形式反馈康乐县自然资源局(单位需盖公章,个人需署真实姓名及联系方式)。

联系电话:0930-4421482 联系地址:康乐县南滨河路(康乐县自然资源局)

附:总平面图