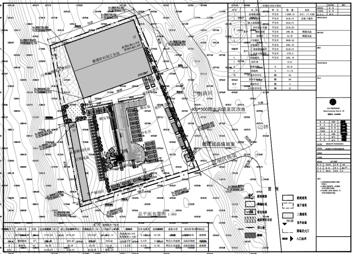
康乐县五户乡福荣商砼站建设项目规划设计方案
康乐县五户乡福荣商砼站建设项目建筑方案设计,依据《中华人民共和国城乡规划法》《甘肃省城乡规划条例》《甘肃省建设项目规划许可管理办法》,现将该项目规划设计方案情况如下:
一、项目拟选位置
五户乡下窑村。
二、建设内容
总用地面积11505.61㎡,新建1层沙料加工车间、1层辅助用房及附属设施,总建筑面积3123.67㎡。
三、如有意见和建议请以书面形式反馈康乐县自然资源局(单位需盖公章,个人需署真实姓名及联系方式)。
联系电话:0930-4421482 联系地址:康乐县胭脂路5号(康乐县自然资源局)
附:总平面图
